Поиск объектов
1000Skladov

Аренда помещения под пищевое производство от 4000 м² до 7000 м² в центре города

Код объекта: 20729
Дата создания: 14.03.2026
Дата обновления: 14.03.2026

Подробное описание объекта:

Санкт-Петербург, Фрунзенский район, Нефтяная дорога, м. Обводный канал

Аренда помещения под пищевое производство от 4000 м² до 7000 м² в центре города

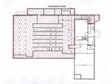
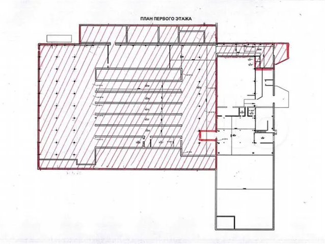
Сдается в аренду производственное помещение в центре Санкт-Петербурга, в 15 минутах ходьбы от метро «Обводный канал» с выездом на Лиговский проспект. Общая площадь 7000 м² с возможностью аренды отдельной части, например 4000 м². Первый этаж 5000 м², второй этаж 1250 м². Отдельное трехэтажное здание общежития для работников 750 м². Высота потолков от 4 до 6 метров позволяет гибко использовать пространство под крупное оборудование. Подведены электрические мощности от 500 до 1000 кВт. Оформленная санитарно-защитная зона подходит для пищевого производства и складирования.

Помещение идеально для кондитерского и хлебобулочного производства, переработки мяса и рыбы, изготовления полуфабрикатов и других направлений легкой промышленности. Сдается без оборудования. Охраняемая территория с доступом 24/7. Наличие подъездных путей, оборудованной погрузочно-разгрузочной зоны и отдельного въезда для грузового транспорта. Парковка для сотрудников и клиентов.

Цена 900 руб. за кв. м. с НДС

Консультант Андрей Салимов

П50

Код объекта: 20729

Телефон для связи: +7 (812) 642-90-45

Характеристики:

Тип сделки
Аренда
Расположение
Санкт-Петербург, Нефтяная дорога
Цена
900,00 за м2
Площадь
4000 - 7000 м2
Скачать фото и план

Дополнительные свойства:

  • Только первый этаж
  • Отапливаемый
  • Пищевое производство

Возможное использование:

Склад
Производство

Получить бесплатную консультацию по объекту