Поиск объектов
1000Skladov

Аренда универсального помещения под любые цели 12 м² возле м. Василеостровская

Код объекта: 20671
Дата создания: 31.10.2025
Дата обновления: 31.10.2025

Подробное описание объекта:

Санкт-Петербург, Василеостровский район, Средний В.О. проспект, м. Василеостровская

Аренда универсального помещения под любые цели 12 м² возле м. Василеостровская

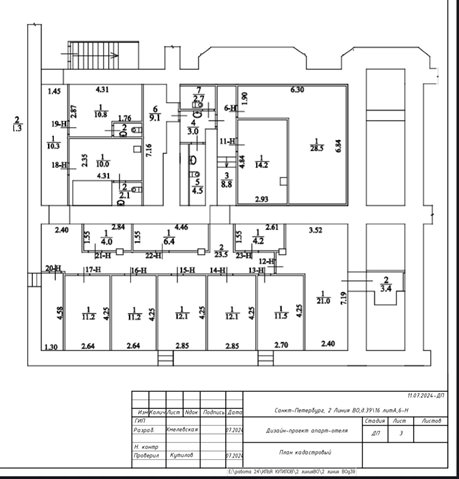
Сдается в аренду чистое, свежеотремонтированное помещение: два кабинета площадью по 12 м² каждый, в одном из кабинетов обустроен санузел. Помещения сухие и теплые, с недавно выполненным качественным ремонтом. Объект полностью подготовлен для комфортной работы. Проведены отопление и электричество, организовано хорошее освещение. Имеется возможность подключения интернета. Для ваших клиентов и сотрудников доступна парковка во дворе.

Универсальная планировка подойдет для самых разных задач. Вы можете организовать здесь арт-студию или творческую мастерскую. Это отличное решение для размещения офиса, рабочего кабинета или небольшого склада. Помещения также могут служить шоурумом или кабинетом для оказания услуг. Расположение обеспечивает отличную транспортную доступность и развитую инфраструктуру. Рядом находятся станция метро и магазины. Помещение находится в подвальном этаже жилого здания с входом через парадную. Сдаем от собственника, без комиссий для арендатора. Для ознакомления с планировкой обратите внимание на помещения, обозначенные на схеме как 18-N и 14-N.

Цена 15. тыс. руб. за один кабинет + КУ

Консультант Андрей Салимов

П50

Код объекта: 20671

Телефон для связи: +7 (812) 642-90-45

Характеристики:

Тип сделки
Аренда
Расположение
Санкт-Петербург, ​Средний В.О. проспект
Цена
1250,00 за м2
Площадь
12 м2
Скачать фото и план

Дополнительные свойства:

  • Только первый этаж
  • Отапливаемый

Возможное использование:

Склад
Офис
Салон красоты

Получить бесплатную консультацию по объекту