
Фрунзенский р-н, ул. Салова, м. Бухарестская.
Аренда отапливаемого помещения под склад, производство.
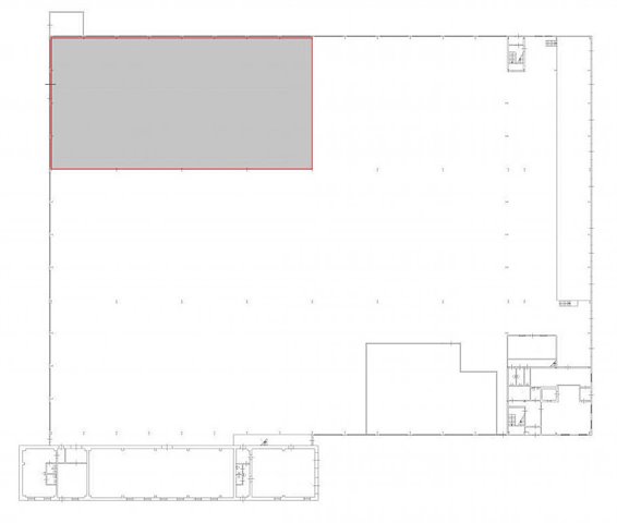
Площадь: 1189,3 м2.
Этаж: 1-й.
Высота потолков: 9-11 м.
Пол: ровный, бетонный, беспылевой.
Возможно стеллажное и паллетное хранение.
Удобная погрузо-разгрузочная зона.
Ворота: роллетные (h = 4 м).
Выделенная электрическая мощность: по запросу.
Пожарная сигнализация.
Возможна аренда офисного помещения.
Высокоскоростной интернет, телефония.
Круглосуточная охрана территории. Видеонаблюдение.
Доступ – 24/7.
Подъезд для легкового и грузового транспорта.
Парковка.
Удобные подъездные пути и транспортная доступность.
Прямое сообщение с КАД.
Шаговая доступность от метро.
Арендная ставка: 950 руб./м2, вкл. НДС.
Консультант: Вадим.
Тел.: +7-981-126-56-06
п100
Код объекта: 20607
Телефон для связи: +7 (812) 642-90-45