
Санкт-Петербург, Выборгский район, 3-й Верхний пер., м. Парнас
Аренда производственно-складского помещения 1650 м² в Выборгском районе
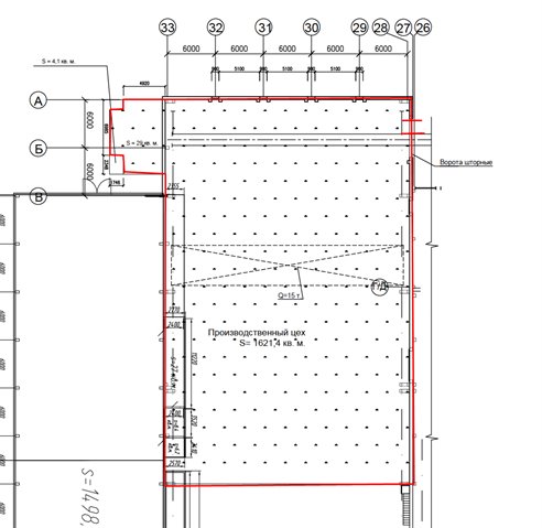
Сдается в аренду производственно-складское помещение 1650 м² в Выборгском районе. Удобная локация всего в 5 минутах пешком от метро «Парнас» делает это помещение идеальным для логистики и производства. Просторная площадь 1650 м² (30×54 м) с высотой до кровли 15 метров и до мостового крана — 9 метров обеспечит комфортную работу с крупногабаритными грузами. Мостовой кран грузоподъемностью 15 тонн (требует ремонта, не эксплуатируется) и стабильный температурный режим (+14…+24°C). Въезд для транспорта не составит труда благодаря широким воротам (4,7 м в ширину и 4,6 м в высоту). Помещение полностью готово к использованию: ровные полы, электрическая мощность 130 кВт, водоснабжение, канализация и центральное отопление. Дополнительные удобства включают отдельный вход, охраняемую территорию, парковку и раздевалки с душевыми (за дополнительную плату). Освобождается с 1 сентября 2025 года.
Цена 1100 руб. за кв. м. УСН + КУ и пропуса на автомобили
Консультант Андрей Салимов
П50
Код объекта: 19629
Телефон для связи: +7 (812) 642-90-45