Поиск объектов
1000Skladov

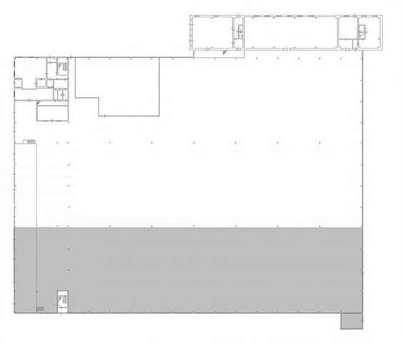
Отапливаемое помещение под склад, производство - 3604 м2

Код объекта: 19587
Дата создания: 10.06.2025
Дата обновления: 10.08.2025
Объект сдан

Подробное описание объекта:

Фрунзенский р-н, ул. Салова, м. Бухарестская.

 

Аренда отапливаемого помещения под склад, производство.

 

Общая площадь: 3604,9 м2.

Этаж:

- 1-й этаж – 2475,4 м2 – производственно-складская зона;

- 2-й этаж – 1129,5 м2 – офисные и подсобно-бытовые помещения.

Высота потолков: 9-11 м.

Пол: ровный, бетонный, беспылевой.

Ворота роллетные:

- с доклевеллерами на пандус – 5 шт. (h = 2,5 м);

- нулевой уровень – 1 шт. (h = 4 м).

Удобная погрузо-разгрузочная зона.

Погрузочно-разгрузочный внутренний пандус.

Возможно стеллажное и паллетное хранение.

Выделенная электрическая мощность: по запросу.

Отопление, ХВС, канализация, с/у.

Пожарная сигнализация.

Высокоскоростной интернет, телефония.

К зданию прилегает асфальтированная открытая площадка.

Круглосуточная охрана территории. Видеонаблюдение.

Доступ – 24/7.

Подъезд для легкового и любого вида грузового транспорта.

Парковка.

Удобные подъездные пути и транспортная доступность

Прямое сообщение с КАД.

Шаговая доступность от метро.

 

Арендная ставка: 1050 руб./м2, вкл. НДС.

 

Консультант: Вадим.

Тел.: +7-981-126-56-06

п100

Код объекта: 19587

Телефон для связи: +7 (812) 642-90-45

Характеристики:

Тип сделки
Аренда
Расположение
Санкт-Петербург, Салова ул.
Цена
1050,00 за м2
Площадь
3604 м2
Скачать фото и план

Дополнительные свойства:

  • Склады класса А,В+
  • Под лицензию (хранение алкоголя, мед. препаратов)
  • Только первый этаж
  • Наличие пандуса, доки
  • Отапливаемый
  • Наличие открытой площадки
  • Наличие отопления

Возможное использование:

Склад
Производство

Получить бесплатную консультацию по объекту