Поиск объектов
1000Skladov

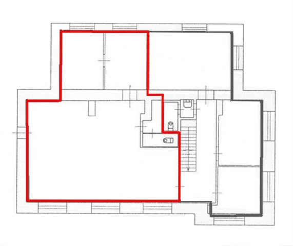
Отапливаемое помещение под мастерскую, производство, склад - 106 м2

Код объекта: 18829
Дата создания: 21.11.2023
Дата обновления: 22.02.2024
Объект сдан

Подробное описание объекта:

Калининский р-н, ул. Минеральная, м. Площадь Ленина.

 

Аренда отапливаемого помещения под мастерскую, производство, склад.

 

Площадь: 106,7 м2:

Этаж: 2-й.

Высота потолков: 4 м.

Пол: бетонный (кафель).

Выделенная электрическая мощность: 25 кВт.

ХВС, канализация, с/у.

Пожарная сигнализация.

Высокоскоростной интернет, телефония.

Круглосуточная охрана территории.

Доступ – 24 ч.

Подъезд для грузового и легкового транспорта.

Парковка.

Удобная транспортная доступность.

Шаговая доступность от метро.

К услугам арендаторов кафе-столовая.

 

Арендная ставка: 550 руб./м2, вкл. НДС.

 

Консультант: Вадим.

п100

Код объекта: 18829

Телефон для связи: +7 (812) 642-90-45

Характеристики:

Тип сделки
Аренда
Расположение
Санкт-Петербург, Минеральная ул.
Цена
550,00 за м2
Площадь
106 м2
Скачать фото и план

Дополнительные свойства:

  • Второй этаж при наличии грузового лифта
  • Отапливаемый
  • Вторые этажи при наличии лифта
  • Наличие отопления

Возможное использование:

Склад
Производство

Получить бесплатную консультацию по объекту